Description
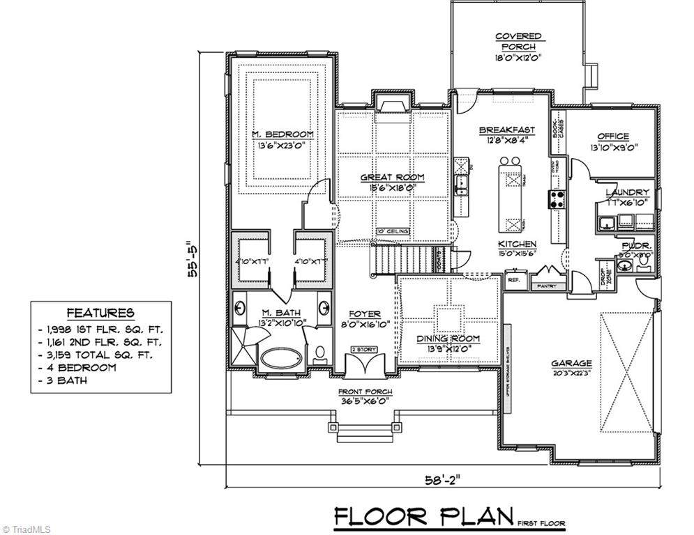
Proposed construction, ready for your customizations! The Bennington II floor plan features a main level primary bedroom and office. Just over 3000 sq ft, this traditional home has a formal dining room and spacious kitchen with a breakfast overlooking the covered deck or screened porch. The second level has three additional large bedrooms, including one with an ensuite bathroom. Second level also has a bonus/family room. The basement can be fully finished as you desire. Elevator option available for accessibility. Ask about other add-ons and customizations. Great neighborhood amenities such as pool, tennis, basketball, and clubhouse. Minutes from Haw River State Park, Highway 29 to Reidsville, and 15 minutes to Moses Cone Hospital.
-
4BEDS
-
1.84ACRES
-
3BATHS
-
11/2 BATHS
-
3,159SQFT
-
$0$/SQFT
School Information
Description
Proposed construction, ready for your customizations! The Bennington II floor plan features a main level primary bedroom and office. Just over 3000 sq ft, this traditional home has a formal dining room and spacious kitchen with a breakfast overlooking the covered deck or screened porch. The second level has three additional large bedrooms, including one with an ensuite bathroom. Second level also has a bonus/family room. The basement can be fully finished as you desire. Elevator option available for accessibility. Ask about other add-ons and customizations. Great neighborhood amenities such as pool, tennis, basketball, and clubhouse. Minutes from Haw River State Park, Highway 29 to Reidsville, and 15 minutes to Moses Cone Hospital.
Listing information © 2025 Triad MLS, Inc. of North Carolina. All rights reserved. The data relating to real estate for sale on this web site comes in part from the Internet Data Exchange (IDX) Program of the Triad MLS, Inc. of High Point, NC. Real estate listings held by brokerage firms other than Reel Realty are marked with the Internet Data Exchange logo or the Internet Data Exchange (IDX) thumbnail logo (the TRIAD MLS logo) and detailed information about them includes the name of the listing brokers.IDX information provided is for consumers' personal, non-commercial use and may not be used for any purpose other than to identify prospective properties consumers may be interested in purchasing. Information deemed reliable but not guaranteed. Data last updated 2025-11-13T23:30:33.113.
Listing information © 2025 Triad MLS, Inc. All rights reserved. Listing provided courtesy of Compass Carolinas, LLC: . Information deemed reliable but not guaranteed.