Description
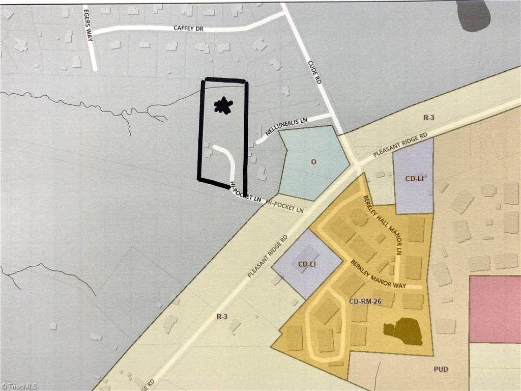
Excellent Investment Potential in high growth area. Current offering includes: rustic log cabin (needs some rehab but value in logs), detached garage/workshop, underground power, existing septic system/well and situated on 3.83 acres. Access is provided by recorded right of way to Pleasant Ridge Rd (Deed of Dedication recorded in 1967 and states access is 60 ft wide). Previously this property has had 2 residential units (cabin and singlewide). Singlewide has been removed but power is on site. The 3.83 acres consists of open, level land when entering. Then transitions to gently sloping natural forest. City of Greensboro is located just 1 parcel away and apartment buildings are located just across the street
School Ratings & Info
Description
Excellent Investment Potential in high growth area. Current offering includes: rustic log cabin (needs some rehab but value in logs), detached garage/workshop, underground power, existing septic system/well and situated on 3.83 acres. Access is provided by recorded right of way to Pleasant Ridge Rd (Deed of Dedication recorded in 1967 and states access is 60 ft wide). Previously this property has had 2 residential units (cabin and singlewide). Singlewide has been removed but power is on site. The 3.83 acres consists of open, level land when entering. Then transitions to gently sloping natural forest. City of Greensboro is located just 1 parcel away and apartment buildings are located just across the street
Related Properties
Listing information © 2025 Triad MLS, Inc. of North Carolina. All rights reserved. The data relating to real estate for sale on this web site comes in part from the Internet Data Exchange (IDX) Program of the Triad MLS, Inc. of High Point, NC. Real estate listings held by brokerage firms other than Reel Realty are marked with the Internet Data Exchange logo or the Internet Data Exchange (IDX) thumbnail logo (the TRIAD MLS logo) and detailed information about them includes the name of the listing brokers.IDX information provided is for consumers' personal, non-commercial use and may not be used for any purpose other than to identify prospective properties consumers may be interested in purchasing. Information deemed reliable but not guaranteed. Data last updated 2025-11-09T10:30:36.66.
Listing information © 2025 Triad MLS, Inc. All rights reserved. Listing provided courtesy of A New Dawn Realty, Inc: . Information deemed reliable but not guaranteed.